Готовая модульная баня под ключ

Норд 6×2,5 — тёплая, красивая и готовая к установке за один выезд

Собираем баню в сухом цеху за 2 недели, привозим готовый модуль и ставим на участке за считанные часы — без затяжной стройки, грязи и бесконечных переделок.

Смотреть планировки
от 460 000 ₽ цены на модели 4×2,5 / 5×2,5 / 6×2,5 м
2 недели изготовление в сухом цеху
1 год гарантия + постгарантийное обслуживание
Luxe 27 в базе уже включена мощная печь в сетке из стали 6 мм
Готовая модульная баня Норд 6 на 2,5 метра
Почему это удобно

Не стройка на участке, а готовое решение

Вы получаете уже собранную баню с отделкой, печью и продуманной инженерией. Остаётся доставить модуль и установить на подготовленное основание.

Быстро

Изготовление за 2 недели в сухом цеху. Монтаж на участке — за считанные часы без мокрых процессов.

🔥

Тепло и экономично

Минеральная вата 100 мм в стенах и 150 мм в полу и потолке создаёт эффект термоса.

🪵

Сухой пиломатериал

Используем брус камерной сушки до 12% влажности — меньше риска усадки, щелей и перекосов.

🛡

Защищено на заводе

Все деревянные элементы проходят огне-биозащиту. Дополнительно ставим сетку от грызунов.

Безопасная электрика

Сухая зона и парная разведены по разным типам кабеля. В парной используется термостойкий РКГМ.

📄

Прозрачный договор

Фиксируем цену в договоре. Предоплата 50%, остаток — только после завершения работ и приёмки.

Размеры и цены

Три готовых размера под разный участок и бюджет

Можно подобрать баню под свободное место на участке, сценарий использования и комфортный бюджет без потери качества сборки.

Самая просторная

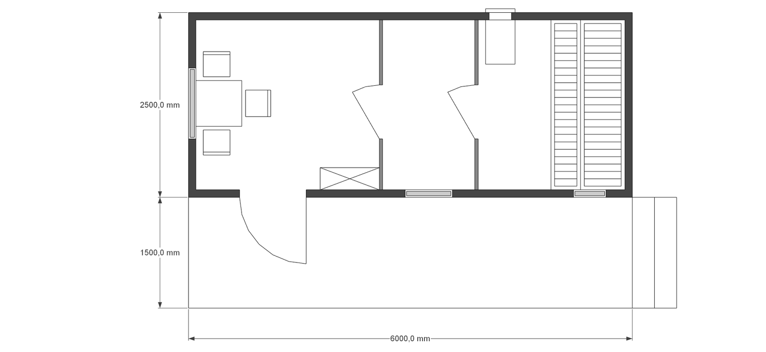
Норд 6×2,5 м

Максимум комфорта: можно выбрать вариант с моечной или с увеличенной комнатой отдыха.

от 560 000 ₽ базовая комплектация с печью
Модель Норд 6×2,5 м
Оптимальный баланс

Норд 5×2,5 м

Компактнее по длине, но всё ещё удобная планировка для дачного участка и семейного использования.

510 000 ₽ готовая баня в базовой комплектации
Модель Норд 5×2,5 м
Самая доступная

Норд 4×2,5 м

Хороший вариант для небольшого участка, гостевого домика или компактной личной парной.

460 000 ₽ готовая баня в базовой комплектации
Модель Норд 4×2,5 м
Базовая комплектация

Всё нужное уже включено в базу

Базовая версия «Норд» уже подготовлена для комфортного использования без болезненных «докупов» после подписания договора.

Снаружи

  • Профлист С8 окрашенный / имитация бруса / сайдинг
  • Кровля из окрашенного профнастила МП20
  • Надёжная входная дверь ПВХ

Комната отдыха

  • Вагонка штиль сосна, сорт А–Б
  • Высота потолков 2 м, можно увеличить до 2,5 м
  • Окна ПВХ двухкамерные

Парная

  • Вагонка штиль сосна, сорт А–Б
  • Потолок и полок из липы класса А
  • Внутренние двери из закалённого стекла

Пол и инженерия

  • Шпунтованная строганная доска
  • Гидроизоляция
  • Электрика по зонам, 3 светильника
Планировки

Выберите подходящую планировку

Каждая вкладка показывает только одну конкретную планировку без смешивания разных вариантов.

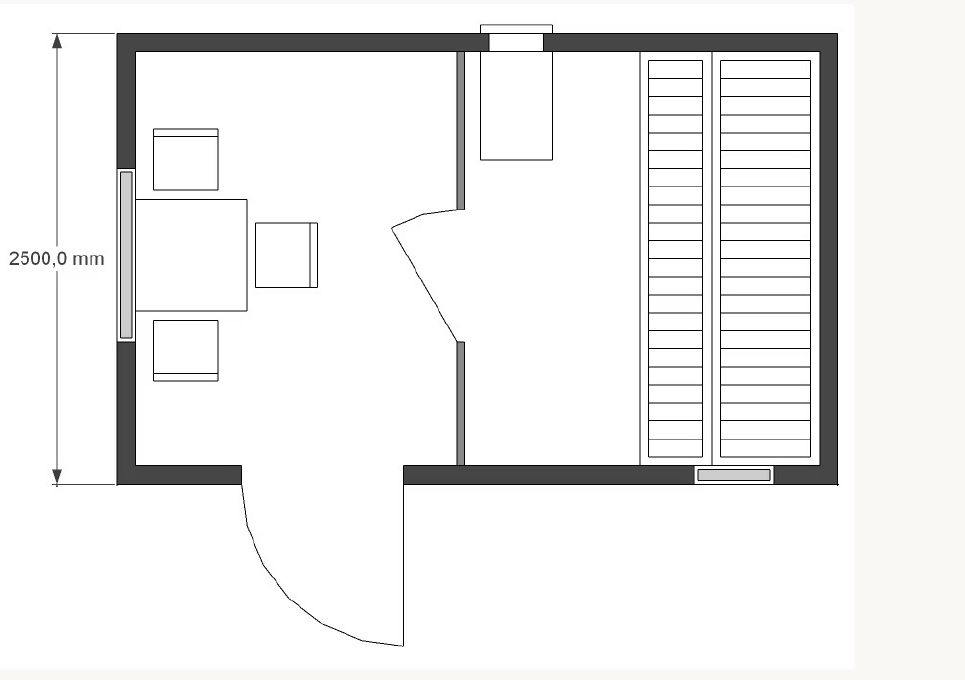
Планировка 6×2,5 с моечной
от 560 000 ₽

6×2,5 м — комната отдыха + парная + моечная

  • Комната отдыха: 2,4 × 2,22 м
  • Парная: 1,9 × 2,22 м
  • Моечная: 1,2 × 2,22 м
  • Окна: ПВХ двухкамерные + окно с рамой из липы в парной
Сердце бани

Не «показная», а реально долговечная печь

Мы ставим печь Luxe 27 в сетке, а не упрощённый вариант ради экономии в смете. Это один из главных факторов комфорта и срока службы всей бани.

  • сталь 6 мм из новой ГОСТ трубы 273 диаметра;
  • до 120 кг камней, камни можно подарить бонусом;
  • есть отсекатель пламени — тепло остаётся в парной;
  • вынос печи выполняется по нормам пожарной безопасности;
  • опционально возможно подключение газового оборудования.
Печь Luxe 27 в сетке
Дополнительные опции

Можно доукомплектовать под ваш участок

Цены прозрачные — каждую опцию добавляем отдельно, без скрытых доплат после замера.

Терраса

  • Открытая терраса — +39 000 ₽
  • Кровля террасы — +40 200 ₽
  • Перила — +41 200 ₽

Фундамент

  • Блоки — +5 000 ₽
  • Сваи — +43 400 ₽

Инженерия

  • Бойлер, смеситель, унитаз
  • Расширительный бак, насос
  • Тёплый пол, разводка воды, напыление ППУ
Как проходит работа

Понятный процесс без сюрпризов

01

Согласование

Подбираем фасад, планировку и нужные опции. Сразу фиксируем комплектацию и стоимость в договоре.

02

Предоплата 50%

Запускаем заказ в производство после аванса. Остаток — только по факту завершения работ и приёмки.

03

Сборка в цеху

Изготавливаем модуль в сухом помещении, где конструкция не набирает лишнюю влагу и не стоит под дождём.

04

Доставка и монтаж

Привозим манипулятором, устанавливаем на участке и передаём готовую баню с комплектом документов.

Связаться с нами

Напишите нам адрес вашего участка прямо сейчас, и мы рассчитаем точную стоимость бережной доставки!

Можно написать прямо в чат на сайте, в Telegram или в WhatsApp. Подскажем по размеру, комплектации, фундаменту и доставке.

Онлайн-чат Ответим в чате, Telegram или WhatsApp

Самый быстрый способ получить точный расчёт — сразу прислать адрес участка и написать, какой размер бани вас интересует.